г Вологда, ул Ленинградская, д 30
Пн-пт с 09:00 до 21:00, Сб-вс с 10:00 до 18:00

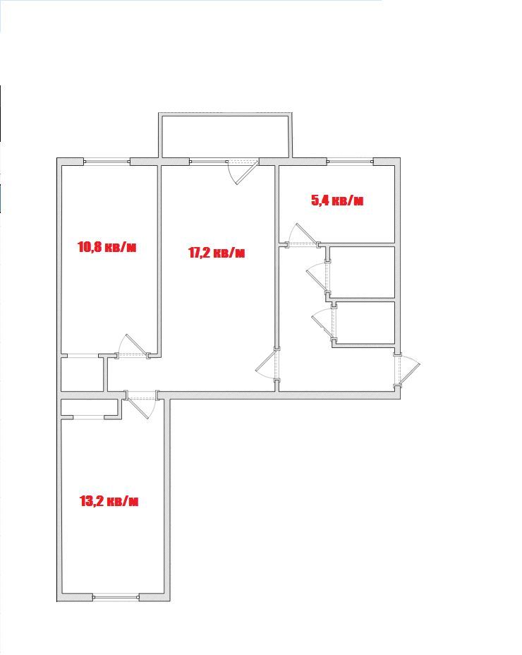
Продажа 3-к.квартира, 56.4 м², 5/5 эт. ID: J1690

Москва, шоссе Можайское, д.1

Комнаты 3
Площадь 56.4 м²
Жилая 41.2 м²
Кухня 5.4 м²
Этаж 5 из 5
Сдача 1963 г.
7 490 000
132 801 /м²
Рассчитать ипотеку
Смирнов Павел

Смирнов Павел
Специалист по недвижимости

Показать телефон

p.v.smirnov.domplus@yandex.ru
QR
Ссылка на объект

Описание

Продам 3-х комнатную квартиру общей площадью 56,4 кв/м., расположенную на 5 этаже 5-и этажного кирпичного дома. Квартира очень теплая и светлая, не угловая. Квартира требует ремонта, окна выходят на разные стороны. Чистый двор, вся необходимая инфраструктура в шаговой доступности: Детский сад № 79 находится во дворе дома, Школа № 12 в 3х минутах ходьбы от дома, Магазины (Лента, Пятерочка, Магнит) все рядом с домом, также Колледж Интегрированных технологий и Музыкальная школа через дорогу. До ж/д станции Отрадное 350 метров от дома. Два взрослых собственника, квартира без обременений. Квартира свободна. Быстрый выход на сделку.

Характеристики

  • Тип недвижимости Квартиры
  • Населенный пункт Москва
  • Адрес шоссе Можайское, д.1
  • Количество комнат 3
  • Год постройки дома 1963 г.
  • Общая площадь 56.4 м²
  • Жилая площадь 41.2 м²
  • Площадь кухни 5.4 м²
  • Этаж 5
  • Этажей в доме 5
  • Тип санузла Раздельный
  • Тип балкона балкон
  • Ремонт требует ремонта
  • Состояние объекта нормальное
  • Наличие телефона да
  • Наличие интернета да
  • Наличие мебели нет
  • Мусоропровод нет
  • Вид из окон во двор и на улицу
  • Высота потолков в метрах 2.7 м.
  • Тип дома кирпичный

Задать вопрос


Мы используем файлы cookie, чтобы обеспечить вам наилучший доступ к нашему веб-сайту

Скопировано